
Sharyland Water Supply Corporation
SWG Engineering and the new City of Donna Water Tower
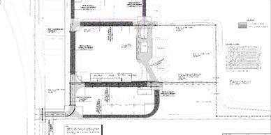
Premiere shopping location in Donna, Texas.

1 Million Gallon Elevated Water Tank. Logo depictions done by SWG.

Civil site work for T-Mobile development.

Basketball court, engineered steel building court cover, exercise facilities, green components including scent and butterfly gardens.

Conceptual design and layout for new welcome area at Highway 100 and 48. Walkways, structure, landscaping and irrigation.

Conceptual design and layout for Port Isabel medians along highway 100. Walkways, artistic installations and seat wall.

Renovation of Mercedes City Park Amphitheater including all new landscaping, lighting and electrical, ADA accessibility, roadway access and irrigation.

Renovation of Los Indios City Park including: Basketball Court, Engineered steel building, court cover and green projects including rainwater capture and reuse and scent and butterfly gardens.

Renovation on Summer Schedule of 5 HCISD schools. Renovations include drainage improvements, parking lot upgrades, site civil, new access roads, and improved aesthetics.

Prepare engineering study and final grant submission for the district. Engineering for canal renovation including pump placement, canal conversion to pipeline, and lining. Green project including education component, water savings due to evaporation and seepage / breakage loss, additional canal security.

Survey and design project. Parking lot renovation. Expansion of sidewalk and safety bollards for outdoor cafe. Transportation engineering for traffic flow and control.

36,000 Linear Feet of Portable Water Transmission Line.

Paving and drainage improvements.

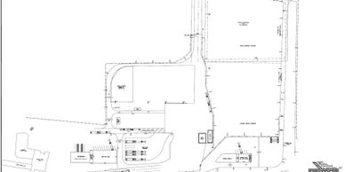
Port of Entry Import Lot Expansion

Upgrade of water lines, sewer lines and lift station rehabilitation. Bridge evaluation and new bridge design.